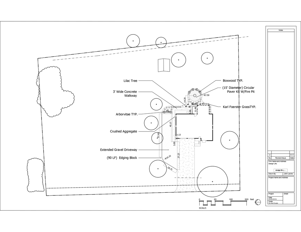
Outdoor Living
CLIENT: Pendleton, Indiana
DESIGN: 2019
CONSTRUCTION: 2019
SCOPE: Planting Design
about this project
This back yard living space was designed to give the family a space to enjoy the outdoors. For this project, Design Life provided the design only, and the homeowner took care of the rest. Most of the work they did themselves, contracting only the major concrete work to the pros.







