Curb Appeal
Location: Pendleton, Indiana
DESIGN: 2018
CONSTRUCTION: 2018
SCOPE: Planting Design
about this project
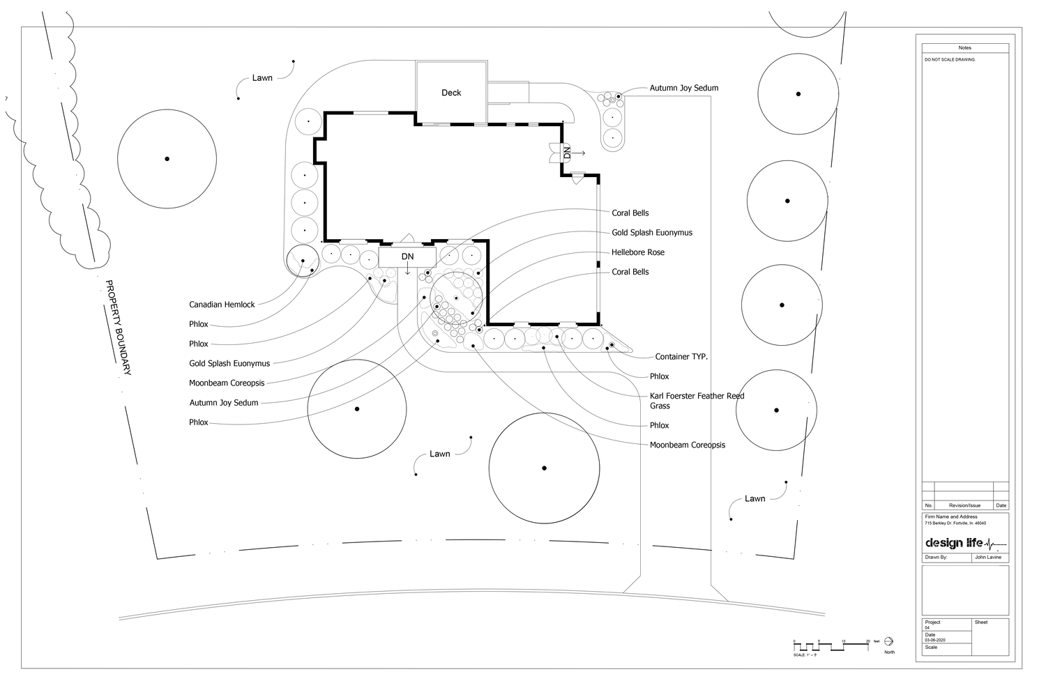
This design was all about the appearance of the street and enhancing the main entrance to the home. The architecture design is very formal, so the approach was to complement the style of the house through the landscape. The ordering system is a grid with layered planting arrangements and large perennial massings. The grid near the entryway was tilted on a 45-degree angle to make things a bit more exciting and attract visitors' attention while heading to the main entrance. This angle also provides a better view as the homeowner is entering or leaving the home. Another goal of this project was to provide all-season interest by incorporating evergreens and plants that bloom at different times.








